Машинно-котельное отделение - Engine and boiler room

Машинно-котельное отделение - Engine and boiler room

Машинно-котельное отделение - Engine and boiler room

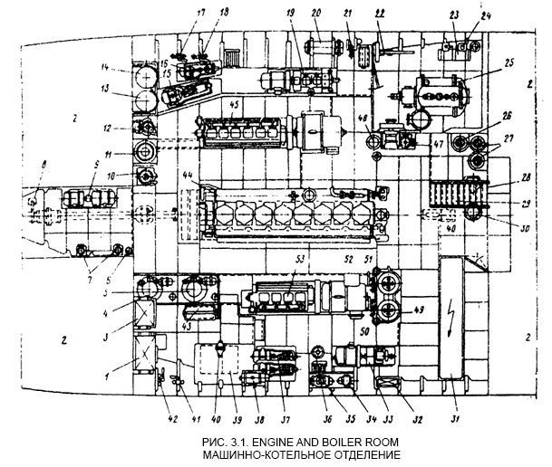
3.1. ENGINE AND BOILER ROOM. PLAN OF ARRAGEMFNTS 3.1. МАШИННО-КОТЕЛЬНОЕ ОТДЕЛЕНИЕ. ЧЕРТЕЖ ОБЩЕГО РАСПОЛОЖЕНИЯ.
1.Lubricating oil service tank 1.Бак для масла
2.Fuel tanks 2.Топливные цистерны
3.Heater for used-up oil 3.Подогреватель отработанного масла
4.Oil separator 4.Сепаратор масла
5.Fuel separator 5.Сепаратор топлива
6.Solid oil syringe 6.Тавотонагнетатель
7.Fuel transfer pump 7.Топливоперекачивающий насос
8.Tachodynamo 8.Тахогенератор
9.Rotary transformer for steering engine 9.Умформер рулевой машины
10.Reserve oil pump 10.Резервный масляный насос
11.Reserve domestic water pump 11.Резервный насос мытьевой воды
12.Reserve potable water pump 12.Резервный насос пресной воды
13.Sea water pneumatic pressure tank 13.Пневмоцистерна забортной воды
14.Domestic water pneumatic pressure tank 14.Пневмоцистерна мытьевой воды
15.Sea water pump 15.Насос забортной воды
16.Domestic water pump 16.Насос мытьевой воды
17.Hand-operated domestic water pump 17.Ручной насос мытьевой воды
18.Hand-operated sea water pump 18.Ручной насос забортной воды
19.Diesel-generator №3 19.Дизель-генератор №3
20.Cooler for Diesel-generator №1 20.Холодильник дизель-генератора №1
21.Hand-operated bilge water pump 21.Ручной осушительный насос
22.Hand-operated boiler water pump 22.Ручной насос котловой воды
23.Condensate filter 23.Фильтр для конденсата
24.Steam-driven pump 'duplex' 24.Паровой насос ’дуплекс’
25. Auxiliary boiler 25.Паровой котел
26.Air cylinder for tyfon 26.Воздушный баллон тифона
27.Starting air cylinders for auxiliary diesels 27.Пусковые баллоны вспомогательных двигателей
28.Fuel feed pump 28.Топливоподкачивающий насос
29.Engine room ladder 29.Главный трап
30.Fire pump 30.Пожарный насос
31.Distribution board 31.Распределительный шит
32.Air compressor 32.Компрессор
33.Navigation lights board 33.Распределительный щит ходовых огней
34.Rotary transformer 34.Умформер
35.Battery-charge rotary transformer 35.Зарядный умформер
36.Hand-operated used-up oil pump 36.Насос отработанного масла
37.Cooling water pump 37.Насос охлаждающей воды
38.Rotary transformer for radio equipment 38.Умформер радиооборудования
39.Bench 39.Верстак
40.Vice 40.Тиски
41.Hand-operated pump 41.Ручной насос
42.Hand-operated used-up oil pump 42.Ручной насос отработанного масла
43.Sand receptacle 43.Ящик для песка
44.Main engine 44.Главный двигатель
45.Diesel-generator №1 45.Дизель-генератор №1
46.Potable water aerator 46.Аэратор питьевой воды
47.Bilge pump 47.Осушительный насос
48.Heavy fuel pump (residual fuel pump) 48.Мазутный насос
49.Starting air cylinders for main engine 49.Пусковые баллоны главного двигателя
50.Hand-operated fuel pump 50.Ручной топливный насос
51.Hand-operated heavy fuel pump 51.Ручной мазутный насос
52.Desk 52.Конторка
53.Diesel-generator №2 Дизель генератор №2

MirMarine
MirMarine – образовательный морской сайт для моряков.
На нашем сайте вы найдете статьи по судостроению, судоремонту и истории мирового морского флота. Характеристики судовых двигателей, особенности устройства вспомогательных механизмов и систем.