Схема дизельной установки: механизмы и устройства

Судовые дизельные установки в зависимости от назначения, типа и района плавания судна, мощности и быстроходности главных двигателей отличаются большим разнообразием механизмов и устройств.

В состав судовой дизельной установки входят: главные двигатели, мощность которых используется для движения судна; устройства, с помощью которых главные двигатели соединяются с судовыми движителями (соединительные муфты, редукторы, упорные и опорные подшипники, валопровод); механизмы и агрегаты, обслуживающие главные двигатели (газотурбонагнетатели, компрессоры, воздухохранители, масляные, охлаждающие и топливоперекачивающие насосы, масляные и топливные сепараторы с соответствующими емкостями и системами трубопроводов), дизель-генераторы и устройства судовой электростанции, вспомогательные и утилизационные котлы, насосы и агрегаты общесудовых и специальных систем, механизмы и устройства рефрижераторных установок, систем кондиционирования воздуха, вентиляции и т. д.

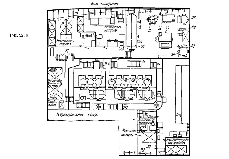
Механизмы и устройства судовой дизельной установки размещаются в машинном отделении судна таким образом, чтобы обеспечить нормальную их работу, удобство обслуживания и ремонта, пожарную безопасность, технику безопасности и охрану труда, а также необходимые мореходные качества судна (рис. 92).

Схема дизельной установки

Схема дизельной установки

Схема дизельной установки

Схема дизельной установки

Схема дизельной установки

MirMarine
MirMarine – образовательный морской сайт для моряков.
На нашем сайте вы найдете статьи по судостроению, судоремонту и истории мирового морского флота. Характеристики судовых двигателей, особенности устройства вспомогательных механизмов и систем.