MAN B&W 50-108 ME-C – Смазка цилиндра

Лубрикаторы

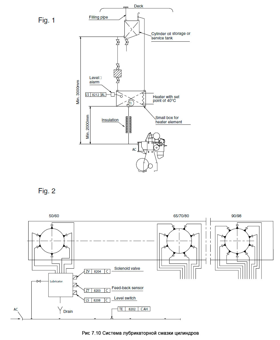
Каждая цилиндровая втулка имеет некоторое количество лубрикаторных пинолей (quills), через которые поступает масло от Alpha Lubricators, как определено в инструкции производителя, том III «Компоненты». Масло подается в цилиндр (через невозвратный клапан), когда поршневые кольца проходят лубрикационные отверстия во время движения от нижней мёртвой точки к верхней, см. также рис. 7.10. Для проверки функционирования см. статью «Проверки во время стоянок». Лубрикаторы питаются маслом от насосной станции, в которую масло поступает из главного танка.

Система лубрикаторной смазки цилиндров - Cylinder Lubricating Oil Pipes

Масляная плёнка на стенке цилиндровой втулки

Для достижения удовлетворительного состояния цилиндра, ЖИЗНЕННО ВАЖНО, чтобы не разрушалась масляная плёнка. Поэтому должны быть выполнены полностью следующие условия:

  1. Лубрикаторы цилиндров должны быть правильно тактированы, см. руководство по Альфа лубрикатору.
  2. Тип цилиндрового масла и общий базовый номер (TBN - total base number) должны подбираться в соответствии со сжигаемым топливом (см.ниже).
  3. Новые втулки и поршневые кольца должны хорошо приработаться.
  4. Подача масла (дозировка) при нормальной работе должна быть в соответствии с рекомендациями. Более того, дозировка должна быть отрегулирована в соответствии с опытом работы для действующей установки (полученным за счёт осмотров через продувочные окна).
  5. Дозировка должна быть увеличена в ситуациях, описанных в п. 4.8 «Special Condition» (Alpha Lubricator Manual).

Цилиндровые масла

Рекомендуется применять цилиндровые масла степенью вязкости SAE 50. Во время стендовых и ходовых испытаний рекомендуется использовать цилиндровые масла с высокой моющей способностью. Использовать необходимо масла с общим базовым номером (TBN - Total base number) 70, поскольку 70 TBN даёт хороший результат. В случае высокого содержания серы в топливе необходимо использовать масло с более высоким TBN.

! Некоторые высокощелочные цилиндровые масла не совместимы с:

  • существенно низким содержанием серы в топливе (обладающем плохими свойствами самовозгорания).
  • некоторыми дизельными топливами.

Такие несовместимости могут быть выявлены при плохом состоянии цилиндра во время осмотра в порту. В таком случае поменяйте цилиндровое масло на более низкий TBN. Нижеприведенная таблица показывает международные бренды масел, которые дают удовлетворительный результат применения в MAN B&W двигателях (работа с тяжёлым топливом). Перечень в таблице не является исчерпывающим, поскольку масла других компаний могут быть также использованы.

Дальнейшая информация может быть получена путем контакта с производителем двигателя.

Подача (доза) цилиндрового масла

1. Основные сведения

Следующие рекомендации базируются на опыте эксплуатации, и принимают во внимание конструктивные особенности (такие как среднее давление, максимальное давление, лубрикационная поверхность втулки), а также качество современных топлив и условий работы. Рекомендации действуют для установок с ВРШ и ВФШ, а также для стационарных, генераторных установок.

Данный раздел базируется на инструктивном письме 03-417/HRJ, которое рекомендует:

  • Регулирование лубрикаторов по базисным уставкам.
  • Повышение лубрикации при приработке и обкатке.
  • Постепенное снижение дозы смазки с осмотрами через выхлопные окна.

Интенсивность подачи цилиндрового масла при обкатке - Cylinder oil feed rate during running-in

2. Обкатка

В отношении увеличения дозы смазки во время приработки и обкатки, а также ступенчатого снижения подачи топлива см. рис. 7.7.

3. Базисная уставка

Базисная уставка для двигателей S/K/L-ME/ME-C составляет 0,8 г/лс •час, см. рис. 7.7.

В настоящее время опыт эксплуатации показал, что возможно также сокращение подачи для двигателей с сверхдлинным ходом поршня типа S-MC/MC-C, оборудованных Альфа лубрикаторами даже ниже относительно нижнего уровня двигателей K/L, т.е. минимум 0,6 г/лс •час.

4. Альфа АСС (Адаптивное управление подачей цилиндрового масла -Adaptive Cylinder oil control)

Действующее, необходимое для цилиндра, количество масла зависит от рабочих условий, таких как нагрузка и качество топлива. Следовательно, для достижения оптимальной лубрикации дозировка цилиндрового масла должна быть адаптирована к таким оперативным вариациям.

С внедрением электронной системы управления «Альфа лубрикатор» с легкоуправляемой панелью HMI, такая адаптивная лубрикация стала достижимой. Система Альфа Лубрикатор даёт возможность снизить расход масла в год и, в то же время, обеспечивает большую безопасность и предиктивность состояния цилиндра.

Изучение связи между износом и дозировкой масла позволило установить, что действующая потребность смазки цилиндра зависит от расхода топлива и его качества. Это предусматривает управление смазкой с учетом загрузки (part-load), т.е. пропорционально выходной мощности двигателя, поскольку нагрузка и расход масла в этой зависимости практически пропорциональны. Это в то же самое время является наиболее экономичным способом управления сравнительно с предыдущим способом управления, когда part-load доза изменяется пропорционально скорости двигателя или среднему давлению цилиндра.

Базовое управление подачей должно быть отрегулировано в отношении качества сжигаемого в данный момент топлива. Безусловно, качество является, в некоторой степени, комплексной величиной. Однако исследования показывают также, что процентное содержание серы является хорошим показателем в отношении износа, поэтому дозировка масла, пропорциональная уровню содержания серы будет обеспечивать наилучшее общее состояние цилиндра. Этот новый принцип управления подачей цилиндрового масла называется Альфа АСС. Проверка Альфа АСС на двигателях К и S с различными типоразмерами показала, что безопасное и оптимальное по экономичности управление получается при выставлении базисной уставки в соответствии со следующей формулой:

Базовая уставка смазочного масла = (0,25 г/лс •час) х S%,

с минимальной уставкой 0,5 г/лс •час, т.е. уставка должна учитывать содержание серы в топливе 2% и ниже.

Зависимость дозировки цилиндрового масла от содержания серы

5. Как отрегулировать дозу согласно принципу Альфа АСС

Прежде всего, сведения о процентном содержании серы в топливе, предназначенного для сжигания в любой момент, являются условием для получения эффекта с помощью Альфа АСС. Поэтому рекомендуется, чтобы суда запрашивали одну из хорошо известных на рынке программ анализа топлива, и чтобы топливо не начинали сжигать до получения результатов. Обычно это занимает от 2 до 4-х дней с момента бункеровки.

Одним из ключевых параметров лубрикации Альфа АСС является управление по нагрузке «part-load», т.е. пропорционально нагрузке двигателя. Это важно главным образом для предотвращения высокой дозировки смазки при малых нагрузках двигателя, а также для сбережения масла по сравнению с обычным способом смазки. Если «управление пропорционально нагрузке» сразу не было установлено поставщиком для судовой системы Альфа лубрикации, то можно связаться с MAN B&W Diesel А/S в отношении инструкций о том, как перейти от программного обеспечения «управление пропорционально скорости» или «управление пропорционально среднему давлению цилиндра» к принципу управления «part-load». Перед началом расхода нового забункерованного масла необходимо отрегулировать уставку HMI Альфа АСС согласно результатам анализа. Для справки должна использоваться следующая таблица:

Уставка традиционно выбирается так, чтобы получить дозу, которая в усреднённых условиях даёт результат безопасной и экономичной эксплуатации цилиндра. Кроме того это оставляет возможность для дальнейших сокращений в направлении рекомендованной минимальной уставки.

Литература

Эксплуатация, обслуживание и ремонт двигателей MAN B&W-ME - Пипченко А.Н., Пономаренко В.В., Шевченко В.А. [2014]
50-108ME/ME-C - VOLUME I OPERATION

MirMarine
MirMarine – образовательный морской сайт для моряков.
На нашем сайте вы найдете статьи по судостроению, судоремонту и истории мирового морского флота. Характеристики судовых двигателей, особенности устройства вспомогательных механизмов и систем.