MAN B&W 50-108 ME-C: Крейцкопф с шатуном. Ремонт, демонтаж, монтаж

Крейцкопф спроектирован в виде центральной части (поперечины) с шейками опорных подшипников на каждом конце, на которых установлены плавающие направляющие башмаки.

Центральная часть крейцкопфа спроектирована в виде шейки подшипника крейцкопфа (головного подшипника).

В крышке подшипника крейцкопфа имеется вырез для соединения штока поршня с крейцкопфом.

Подшипник крейцкопфа (головной) имеет вкладыши, залитые слоем белого металла. Кроме того, нижний вкладыш имеет приработанный слой покрытия. См. также статью «Подшипники – конструкция, требования».

Шток поршня опирается на крейцкопф и направляется направляющим кольцом в крейцкопфе.

Чтобы обеспечить соответствие различным модификациям двигателя, между штоком поршня и крейцкопфом может быть установлена прокладка.

Шток поршня крепится к крейцкопфу четырьмя болтами.

На кронштейн крейцкопфа, установленный между направляющим башмаком и подшипником крейцкопфа, прикреплена телескопическая труба, которая подает смазочное и охлаждающее масло к крейцкопфу, мотылевой шейке и поршню.

Выпускная труба масла, охлаждающего поршень, прикреплена к противоположному концу поперечины крейцкопфа. Выпускная труба скользит внутри трубы с прорезью, установленной в картере двигателя, откуда масло, проходя через датчики контроля на каждом цилиндре для проверки его температуры и потока, сливается в цистерну смазочного масла.

Крейцкопф имеет сверленые каналы для распределения масла, подаваемого через телескопическую трубу, частично для охлаждения поршня, частично на смазку головного подшипника крейцкопфа и направляющих башмаков, а через сверление в шатуне - на смазку мотылевого подшипника.

Поверхности скольжения двух направляющих башмаков залиты белым металлом.

Стопорный болт устанавливается в нижней части центрального отверстия.

Крейцкопф движется по направляющим крейцкопфа в картере двигателя и защищен надежно от смещения направляющими планками, прикрепленными к направляющим башмакам.

Сборка подшипника крейцкопфа производится с помощью четырех шпилек с гайками. Гайки затягиваются гидравлическим приспособлением.

Мотылевой подшипник имеет вкладыши, залитые белым металлом, и собирается с помощью двух шпилек с гайками. Гайки затягиваются гидравлическим приспособлением.

Как вкладыши головного, так и вкладыши мотылевого подшипников фиксируются на месте винтами, устанавливаемыми в корпусах подшипников.

Проверка подшипника крейцкопфа

Верхний зазор между шейкой и новым вкладышем подшипника является результатом суммирования допусков компонентов сборки.

Для верхнего зазора специального подшипника см. измерения в Adjustment Sheet в томе 1, Operation.

  1. Откройте люк картера цилиндра, с которым имеете дело.
  2. Поверните кривошип этого цилиндра в НМТ.
  3. Замерьте зазор в подшипниках крейцкопфа с помощью щупа, который должен быть вставлен между крышкой подшипника и шейкой крейцкопфа.
  4. При проверке зазоров расхождение между замерами, записанными в данных паспорта (или с зазором, указанным для нового подшипника, установленного позже) не должно превышать 0,05/0,1 мм. В случае превышения подшипник крейцкопфа должен быть разобран для осмотра, см. операцию «Демонтаж подшипника крейцкопфа».
  5. Предельный износ вкладыша подшипника крейцкопфа ограничен 50%-ным снижением длины масляного клина (L).
  6. О дальнейшем внешнем осмотре подшипника крейцкопфа см.статью «Подшипники – конструкция, требования»

Crosshead Bearing: Checking

Демонтаж подшипника крейцкопфа

Crosshead Bearing: Dismantling

Crosshead Bearing: Dismantling

Crosshead Bearing: Dismantling

Эта процедура применяется к таким двум ситуациям: с вставленным поршнем (шаги 1-14) и с вынутым поршнем (5-14)

  1. Поверните кривошип вниз так, чтобы обеспечить доступ к гайкам и болтам на штоке поршня, крышке подшипника крейцкопфа и болтам на телескопической трубе.
  2. Установите две цепи с рым-болтами в отверстия для внутренних болтов в днище блока цилиндра для подвешивания штока поршня, в направлении поперек судна. Установите также два рым-болта в продольном направлении (нос-корма) судна. Отдайте и снимите стопорную проволоку с болтов штока поршня в пятке штока поршня. Снимите болты. Установите проставочное кольцо («стакан») и гидравлические домкраты для ослабления гаек на крышке подшипника крейцкопфа. Ослабьте гайки. О работе с гидравлическими приспособлениями см. статью «Основные инструменты». Снимите гидравлические домкраты и отверните гайки.
  3. Установите по одному подъемному рым-болту на каждой стороне крышки подшипника и на штоке поршня. Отдайте и снимите болты, которые крепят телескопическую трубу к колену. Снимите один болт с корпуса телескопического сальника и установите специальное приспособление для подвешивания телескопической трубы. Поверните кривошип в ВМТ.
  4. Закрепите концы цепей за подъемные рым-болты в штоке поршня. Подвесьте телескопическую трубу с помощью приспособления. Проверните кривошип вниз, при этом шток поршня будет оставаться подвешенным на двух цепях.
  5. Поверните в НМТ. На некоторых двигателях направляющие башмаки на нескольких цилиндрах могут быть оснащены противовесами. При необходимости демонтируйте противовесы и подвесьте их вверху картера.
  6. Установите проставки вокруг гаек и присоедините гидравлические джеки к шпилькам. Ослабьте гайки крышки подшипника крейцкопфа. Удалите гидравлические джеки и проставки и открутите гайки. Демонтируйте ударные накладки (thrust pieces) с крышки подшипника.
  7. Установить подъёмное приспособление с проушинами на верх крышки подшипника крейцкопфа.
  8. Зацепить такелаж за проушины и снять крышку подшипника с крейцкопфа.
  9. Проверить верхнюю часть шейки.
  10. Провести оттяжку в верхней части дверного подъёма. Зацепить третий конец за проушину и вытащить крышку подшипника из двигателя.
  11. Разместите крышку подшипника на бок на паре деревянных реек. Если необходимо, демонтируйте стопорные болты для замены вкладыша подшипника.
  12. Закрепить такелаж к фиксированным грузоподъёмным скобам на раме подъёмного окна. Зацепить такелаж на подъёмном приспособлении шатуна и закрепить его. Вмонтировать рымы вверху каждого направляющего башмака.
  13. Закрепить такелаж на рымах и поднять крейцкопф, чтобы обеспечить доступ к подшипнику крейцкопфа.
  14. В случаях, когда необходимо снять нижний вкладыш подшипника, наклоните шатун в направлении люка со стороны распределения с помощью талей. Снимите стопорные болты и поверните вкладыш подшипника вверх настолько, чтобы можно было установить рым- болт.
    Снимите вкладыш подшипника с двигателя.

Сборка подшипника крейцкопфа

Crosshead Bearing: Mounting

Crosshead Bearing: Mounting

    С ВМОНТИРОВАННЫМ ПОРШНЕМ/С УДАЛЁННЫМ ПОРШНЕМ

  1. Установите и закрепите новый вкладыш подшипника в корпусе подшипника.
    Избыточная высота X предназначена для обеспечения правильного обжатия вкладыша подшипника и не должна устраняться.
  2. Осторожно опустить крейцкопф, чтобы не повредить вкладыш подшипника и шейку крейцкопфа.
  3. Подать крышку подшипника в двигатель. Опустить крышку подшипника на крейцкопф и удалить тали. Удалить подъёмные приспособления от шатуна. Убрать с двигателя оттяжку.
  4. Затянуть одновременно все четыре болта крышки подшипника крейцкопфа. См. Data. Для работы джеками см. статью «Основные инструменты». Поставить упорные детали (thrust pieces) на крышке подшипника. Затянуть болты необходимым моментом, установленным в Data.
  5. Если направляющие башмаки снабжаются противовесами, то установить их. Закрутить болты и законтрогаить их.
  6. Вставить поршень.
  7. С ВМОНТИРОВАННЫМ ПОРШНЕМ:

  8. Используйте резиновые колпачки, чтобы закрыть входы/выходы масла на верху крейцкопфа. Поставьте все гидравлические гайки на шпильки и закручивайте до тех пор. пока гайки не станут заподлицо с верхом шпилек. Поверните крейцкопф вверх так, чтобы основание штока поршня легло на гайки, вращая, таким образом, крейцкопф, чтобы лицевая поверхность стала параллельно основанию штока поршня. Опустить крейцкопф настолько, чтобы была возможность снять гайки и резиновые колпачки. Если какие-либо прокладки были удалены с крейцкопфа, то поставьте их снова.
  9. Поверните крейцкопф вверх, чтобы шток поршня сел на крейцкопф. Когда монтируемый поршень достигнет крейцкопфа, убедитесь в том, что основание штока поршня не повреждено резьбой шпилек. Обеспечьте, чтобы направляющее кольцо в крейцкопфе стало точно по центру отверстия поршневого штока.

  10. Отцепите такелаж от проушин подъёмных болтов на штоке поршня. Уберите цепи и рымы с верха крейцкопфа, с поршневого штока и крышки подшипника крейцкопфа.
  11. Поверните вниз к НМТ и установите гидравлические джеки на шпильки. Затяните гайки как сказано в Data.
  12. Уберите с двигателя все инструменты. Проверьте, чтобы не оставалось инструмента, осколков или тряпок.

Крейцкопф. Демонтаж крейцкопфа

Crosshead: Dismantling

Crosshead: Dismantling

Crosshead: Dismantling

  1. Демонтируйте трубы смазочного масла главного подшипника. Демонтируйте выпускную трубу охлаждающего масла от направляющего башмака и дренажную трубу слива масла.
  2. Отдать и удалить болты, которые крепят телескопическую трубу к направляющему башмаку. Для отдачи углового винта позади телескопической трубы необходимо использовать специальный удлинённый оффсетный ключ с сокетной головкой.
  3. Установить удерживающее приспособление для телескопической трубы на корпусе сальниковой коробки телескопической трубы. Проверните крейцкопф в ВМТ. Подвесьте телескопическую трубу с помощью приспособления. Вверните две проушины в верху картера двигателя в направлении нос-корма и две в - поперечном направлении. Подвесьте две тали для подъёма в поперечном направлении.
  4. Подвесьте поршень, см. «Демонтаж подшипника крейцкопфа».
  5. Повернуть к НМТ.
  6. Установить проставки вокруг гаек и закрутить гидравлические джеки на шпильки. Отпустить гайки крышки подшипника крейцкопфа. Убрать гидравлические джеки и проставки, и выкрутить гайки.
  7. Удалить стопор (blocking wire) и упорные части (thrust pieces) с крышки подшипника. Ввернуть две проушины и отжимные болты (extention screws) в крышку подшипника крейцкопфа. Зацепить тали на проушины и снять крышку подшипника с крейцкопфа. Проверить верхнюю часть шейки. Установить направляющий конец в верху дверного проёма. Поднять и вытащить из двигателя подшипник.
  8. Используя шпильковёрт, выкрутить шпильки из шатуна.
  9. Убрать с крышки подшипника подъёмный инструмент и установить его на крейцкопф. Установить подъёмное приспособление для фиксирования шатуна на головке штока. Прикрепить тали к скобам на стенке рамы подъёмного окна (frame box wall) и закрепить крюки талей к оснастке. Набить тали. Закрепить тали к проушинам, установленным в поперечном направлении и прикрепить крюки к двум скобам на оснастке подъёма на крейцкопфе, поднять и освободить крейцкопф от шатуна.
  10. С помощью талей наклонить шатун к выходной стороне, поворачивая кривошип в сторону кулачкового вала. При необходимости перенести тали с одной стороны на другую. Когда кривошип составит 90° после НМТ, остановить вращение. Управляя талями, наклонять шатун до тех пор, пока он не ляжет на деревянные рейки в днище фундаментной плиты.
  11. Снять направляющие планки и болты с направляющих башмаков. Поставить рымы сверху каждого направляющего башмака. Рекомендуется во избежание смешивания промаркировать направляющие планки и шайбы.
  12. Подать две тали к проушинам в днище цилиндровой рамы в направлении нос-корма. Опустить крейцкопф, чтобы был доступ к болтам на конце шеек направляющих башмаков. Положить тонкую деревянную планку или что-то подобное сверху кривошипа, чтобы защитить крейцкопф. Убедиться, что шейка крейцкопфа не касается кривошипа.
  13. Зацепить тали за проушины в направляющих башмаках и набить их. Удалить направляющие болты с подошвы направляющих башмаков.
  14. Поставить две проушины в отверстия для стопорных болтов в направляющих башмаках по близости цилиндровых блоков (adjacent cylinder units), и подвесить две тали за проушины.
  15. Набивать тали направляющих башмаков и одновременно толкать в сторону направляющие башмаки, чтобы снять их с крейцкопфа. Протащить с помощью талей (in adjacent cylinder units) направляющие башмаки через открытия в боковых стенках. Поднять направляющие башмаки, чтобы обеспечить пространство для поворота крейцкопфа.
  16. Повернуть крейцкопф на 90°. Позаботьтесь, чтобы крейцкопф не ударялся обо что-нибудь, дабы не повредить его поверхности скольжения. Для защиты применяйте резиновые коврики.
  17. Подать тали снаружи двигателя и с помощью веревочного троса и талей вынуть крейцкопф из двигателя. Положить и защитить крейцкопф вне двигателя. Убрать с двигателя направляющие башмаки и промаркировать их.

Монтаж крейцкопфа

Crosshead: Mounting

Crosshead: Mounting

Crosshead: Mounting

  1. Почистить крейцкопф и поставить подъёмные подвески (lifting brackets). Завести проводник в дверной проём рамы. Подвесить две тали от верха рамового окна между направляющими. Подвесить тали снаружи двигателя. Прикрепить проволочный канат к крану машинного отделения. Пропустить внизу проволочный канат через цилиндровую раму, через картер и наружу дверного проёма. Зацепить проволочный канат и тали за подъёмные подвески (lifting brackets) на крейцкопфе, осторожно поднять крейцкопф и осторожно завести его в картер.
  2. Повернуть крейцкопф на 90°, чтобы можно было монтировать направляющие башмаки. Убедиться, что входные и выходные масляные отверстия размещаются на выпускной стороне. Позаботьтесь и защитите поверхности от повреждений.
  3. Прикрепить тали к проушинам на подошве направляющих башмаков соседних цилиндров. Используя эти тали и тали снаружи двигателя, аккуратно поднять в двигатель направляющие башмаки.
  4. Обильно смазать поверхности скольжения направляющих башмаков и отверстие для крейцкопфа чистым маслом, и вставить направляющие башмаки через боковые проёмы в нужном положении.
  5. Поставить шайбы и направляющие планки на направляющие башмаки, закрутить направляющие болты.
  6. Поднять вверх крейцкопф с направляющими башмаками. Зацепить тали за подъёмные приспособления, смонтированные на шатуне. Используя тали, поднимать шатун до тех пор, пока он не станет прямо к крейцкопфу. В этом положении проверить состояние вкладыша подшипника крейцкопфа. См. процедуру «Проверка подшипника крейцкопфа».
  7. Обильно смазать чистым смазочным маслом вкладыш подшипника крейцкопфа. Поворачивать кривошип прямо вверх до тех пор, пока метки (bears) шатуна не станут явно (firmly) против крейцкопфа. Уберите из двигателя тали, подъёмные приспособления и тросы.
  8. Провернуть двигатель к НМТ. Поставить шпильки на шатун. Используя шпильковёрт и моментный ключ, затянуть шпильки моментом, указанным в Data.
  9. Обильно смазать шейку крейцкопфа чистым смазочным маслом. Аккуратно поднять крышку подшипника крейцкопфа в картер и смонтировать её на крейцкопфе. Во время монтажных операций тщательно оберегайте поверхности скольжения подшипникового вкладыша от царапин и повреждений.
  10. Поставить и затянуть гайки на шпильках подшипника крейцкопфа. В этом пункте рекомендуется проверить клиренс подшипника крейцкопфа. Удалить гидравлический инструмент и проушины с двигателя. Поставить упорные детали на крышке подшипника.
  11. Примечание. Должно быть обеспечено, чтобы перед затяжкой был зазор между упорной деталью и крейцкопфом в направлении нос-корма.

    Затянуть болты моментом, указанным в Data. Для правильной затяжки см. статью «Основные инструменты».

  12. Проверить зазор между направляющими планками, направляющими башмаками и направляющими крейцкопфа. См. статью «Основные инструменты».
  13. Поворачивать крейцкопф в верхнее направление до касания переднего направляющего башмака телескопической трубы. Удалить подвесной инструмент с телескопической трубы. Поставить и затянуть болты, которые крепят телескопическую трубу к направляющему башмаку. Для того чтобы достать болт в углу телескопической трубы, необходимо применять специальный сокетный ключ. Вмонтировать выпускную трубу охлаждающего масла на самый кормовой направляющий башмак.
  14. Поставить трубы смазочного масла главного подшипника. Вмонтировать поршень. См. статью «Поршень со штоком и сальниковая камера. Ремонт, демонтаж, монтаж».
  15. Убрать весь инструмент из двигателя.

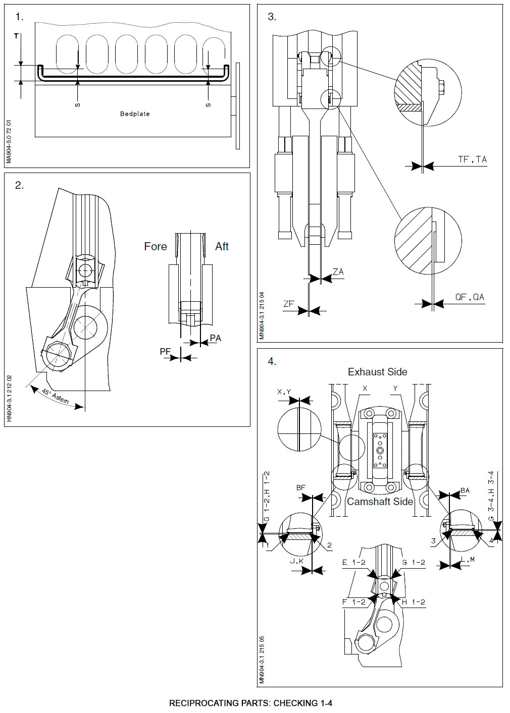
Проверка деталей возвратно-поступательного движения

Reciprocating Parts: Checking

Для получения одинаковых условий проведения замеров на борту, дифферент судна должен быть близким к 0°.

  1. Установите прозрачную пластиковую трубу вдоль фундаментной рамы.
  2. Загните каждый конец примерно на 250 мм вверх по сторонам каркаса. См.

    Заполните трубу водой (возможно подкрашенной) до уровня примерно 100 мм от нижней кромки трубы.

    Отдифферентуйте судно так, чтобы разница уровней воды S в носовом и кормовом концах трубы была менее 1,5 мм на 1000 мм.

    Измерения следует произвести линейкой.

  3. Проверните коленчатый вал в направлении «Назад» в положение примерно на 45° после НМТ (положение 1). Башмаки крейцкопфа теперь должны находиться напротив направляющих «Вперед».
  4. Центровка поршня в цилиндре замеряется (из полости продувочного воздуха с помощью длинного щупа) между юбкой поршня и втулкой цилиндра в носу и в корме (PF-PA).

    Убедитесь, что поршень не касается втулки цилиндра в направлении нос-корма.

  5. Измерьте зазор между кривошипом (crankthrow) и шатуном.
  6. Измерьте зазор между упорной деталью (thrust piece) и крейцкопфом (TF и ТА или QF и QA). Измерьте зазор между направляющими крейцкопфа и направляющими башмаками (Е, F, G и Н).
  7. Измерьте зазор между направляющими планками и направляющими крейцкопфа (J, К, L и М).

    Зазор, рассчитанный как J+X, K+Y, L+Y и M+Y, регулируется путём вставки прокладок так, чтобы он стал симметричным в отношении к зазору между юбкой поршня и втулкой цилиндра. Параллельность между направляющей планкой и направляющей должно быть допустимым 0,2 мм на 1000 мм. BF и ВА зависят от толщины прокладок и измеряются только при выполнении регулировки.

  8. Результаты измерений рекомендуется заносить в таблицу для дальнейшего использования.

Reciprocating Parts: Checking

Проверка мотылевого подшипника

Crankpin Bearing: Checking

Нижний зазор между шейкой и новым вкладышем подшипника является результатом суммирования производственных допусков сборки подшипника.

Нижний зазор считается нормальным в пределах 0,24-0,45 мм.

О нижнем зазоре на реальном подшипнике см. Volume 1.OPERATION Adjustment Sheet.

  1. Откройте люк картера напротив проверяемого цилиндра.
  2. Поверните кривошип проверяемого цилиндра в НМТ.
  3. Замерьте зазор в мотылевом подшипнике щупом внизу вкладыша подшипника с обеих сторон.
  4. При проверке зазоров, расхождение между замерами на листе регулировки (или записанным зазором для установленного позднее нового подшипника) не должно превышать 0,05 мм; в случае превышения - мотылевый подшипник должен быть разобран для осмотра, см. операцию «Демонтаж мотылевого подшипника».
  5. Предел износа вкладышей мотылевых подшипников основан на оценке состояния подшипника во время осмотра.

Среднее значение износа 0,01 мм за 10000 часов считается нормальным.

О дальнейшем внешнем осмотре мотылевого подшипника см. статью «Подшипники – конструкция, требования».

Демонтаж мотылевого подшипника

Crankpin Bearing: Dismantling

Crankpin Bearing: Dismantling

  1. Поверните кривошип в НМТ.
  2. Установите два рым-болта в днище блока цилиндра в два наружных отверстия в поперечном направлении судна и подвесьте две тали.
  3. Поверните кривошип в ВМТ. Установите рым-болты с каждой стороны крышки мотылевого подшипника и посредством скоб и тросов закрепите тали и натяните их. С помощью гидродомкратов отпустите гайки шпилек мотылевого подшипника (о работе гидродомкратов см. статью «Основные инструменты»). Снимите гидродомкраты и гайки.
  4. Опустите крышку подшипников, тщательно следя, чтобы шпильки не повредили шейку коленвала. Опустите крышку подшипников на пару досок в масляном поддоне. Осмотрите вкладыш подшипника.
  5. Если вкладыш подшипника необходимо заменить, следует вынуть крышку подшипника из картера. Подвесьте таль с подъемной оснасткой на внутренней стороне распределительного вала картера над люком картера. Зацепите таль за рым-болт на одной из сторон крышки подшипника. С помощью тали с внутренней стенки картера вместе с талью, подвешенной на кронштейне площадки, выведите крышку подшипника из картера.
  6. Положите крышку подшипника на бок на пару досок, снимите стопорные винты вкладыша подшипника и замените вкладыш новым. Вкладыши подшипника должны меняться парой.
  7. Поверните в ВМТ. Установите четыре опоры для направляющих башмаков на направляющие крейцкопфа. Установите опорные кронштейны в их нижнее положение. Осторожно поворачивайте кривошип вниз, пока башмаки крейцкопфа не достигнут 1 мм до опорных кронштейнов. Подгоните опорные кронштейны к направляющим башмакам так, чтобы масса крейцкопфа была равномерно распределена на четыре опоры.
  8. Установите подъемное приспособление на нижнем конце шатуна, на одной его стороне. Зацепите таль и натяните.
  9. Осторожно проверните коленчатый вал вниз, «сопровождая» талью и следя за тем, чтобы верхний подшипник полностью вышел из кривошипа, когда части будут отделяться. Продолжайте вращение коленчатого вала до тех пор, пока поверхность подшипника сможет быть свободно осмотрена. Осмотрите поверхность подшипника и шейку коленвала.
  10. При необходимости замените вкладыш подшипника следующим образом:
    • поверните коленчатый вал в горизонтальное положение;
    • отпустите тали так, чтобы шатун свободно висел.
  11. Снимите стопорные болты с нижней стороны направляющих башмаков и взамен установите рым-болты. Зацепите две тали за рым-болты.
  12. Установите подъемное приспособление для верхнего вкладыша мотылевого подшипника на щеки кривошипа и прицепите тали к подъемному приспособлению. Установите приспособление на вкладыш подшипника в шатуне с помощью талей и натяните.
  13. Снимите стопорные винты с вкладыша подшипника. Опустите подъемное приспособление с вкладышем подшипника с помощью талей.

Замена мотылевого подшипника

Crankpin Bearing: Overhaul

  1. При необходимости замените вкладыши подшипника новыми. Вкладыши должны меняться парой.
  2. На случай восстановления шейки в зипе имеются трёхмиллиметровые вкладыши подшипника заниженного размера.

    Покройте поверхность подшипника и шейку чистым смазочным маслом.

    Вкладыши подшипников заниженного размера до 3 мм годны как запасные части.

    Смонтируйте детали в порядке, обратном демонтажу.

    Избыточная высота X, рис. обеспечивает правильную затяжку вкладыша подшипника и не должна устраняться.

  3. Поднимите верхний вкладыш подшипника шатуна к крейцкопфу.
  4. Снимите подъемное приспособление, тали и рым-болты с направляющих башмаков.
  5. Установите стопорные болты в направляющие башмаки.

Монтаж мотылёвого подшипника

Crankpin Bearing: Mounting

  • 4. Зацепите таль за установленную под люком проушину к подъемному приспособлению на шатуне и натяните трос.
  • Осторожно поверните коленчатый вал вверх, сопровождая талью, убеждаясь, что верхняя часть подшипника входит в проем между щеками коленчатого вала, когда детали поворачиваются вместе. Снимите таль и подъемное приспособление с шатуна.

  • 5. Поверните крейцкопф в ВМТ. Снимите опоры для направляющих башмаков с направляющих крейцкопфа.
  • 6. Подвесьте тали к рым-болтам в верхней части картера. Заведите крышку подшипника в картер и положите ее на пару досок в масляном поддоне. Уберите оснастку ведущего проводника из двигателя.
  • 7. Зацепите тали к тросам и поднимите крышку подшипника в положение напротив шатуна.
  • Внимание!

    Во время монтажа внимательно следите, чтобы шпильки не повредили шейку коленвала кривошипа, и проверяйте, чтобы установочные штифты, расположенные на крышке подшипника, заняли правильное положение к соответствующим пазам.

    Это необходимо для того, чтобы предотвратить перекашивание вкладышей подшипников в процессе затяжки.

    Поставьте гайки и, с помощью «стаканов» и гидродомкратов, затяните крышку мотылевого подшипника. См. Данные.

    См. статью «Основные инструменты». Снимите тали с верха рамового блока.

Демонтаж шатуна

Connecting Rod: Dismantling

Connecting Rod: Dismantling

Connecting Rod: Dismantling

  1. Подсоедините тали в точки A,B,C,D, рис. 10.9, на стороне картера: А - вторая сверху скоба на стороне выхлопа; В - средняя скоба на стороне коленчатого вала; С -нижняя скоба на стороне выхлопа; D -самая верхняя скоба на стороне коленчатого вала.
  2. Удалите плиты на верхней и средней платформах. Опустите гак крана машинного отделения с возможностью достижения самой нижней платформы.
  3. Поверните кривошип в ВМТ. Демонтируйте крышку подшипника пальца кривошипа и уберите её с двигателя. См. «Демонтаж мотылевого подшипника».
  4. Подвесьте шток поршня к верху картера, см. «Демонтаж подшипника крейцкопфа» или уберите его из двигателя.
  5. Демонтируйте крышку подшипника крейцкопфа, см. «Демонтаж подшипника крейцкопфа».
  6. Используя шпильковёрт, снимите шпильки с шатуна.
  7. Поворачивайте вверх крейцкопф до тех пор. пока основание штока поршня не станет на крейцкопф. Снимите цепи с основания штока поршня. Закрутить гайки штока поршня на шпильки крейцкопфа. Установить подъёмные приспособления для фиксирования шатуна на головку шатуна.
  8. Повернуть крейцкопф в ВМТ. Зацепить две тали от точек А и В к подъёмным приспособлениям на головке шатуна. Набить тали. Смонтировать на нижнем конце шатуна приспособление для подъёма со стороны выхлопа. Установить четыре опоры для направляющих башмаков на направляющих крейцкопфа. Осторожно поворачивать кривошип вниз к НМТ, управляя талями, поддерживать шатун. Проворачивать кривошип до тех пор, пока направляющие башмаки не достигнут опор. Отрегулировать опорные кронштейны так, чтобы равномерно распределить вес крейцкопфа на четырёх опорах.
  9. Провернуть кривошип примерно на 90° до ВМТ. Зацепить тали С за подъёмное приспособление на нижнем конце шатуна. Присоединить ведущий трос к верху дверного проёма.
  10. Зацепить тали D за подъёмное приспособление, установленное на верхнем конце шатуна со стороны выхлопа. Набить тали. Убрать тали В, и удалить подъёмное приспособление со стороны коленвала головки шатуна.
  11. Переставить тали А с головки шатуна на подъёмное приспособление основания шатуна. Осторожно поворачивать кривошип вверх и, управляя талями А, С и D, вывести головку шатуна к дверному проёму.
  12. Используя подвеску и трос, зацепить машинным краном за подъёмное приспособление на головке шатуна. Убрать тали С. Переставить тали D с головки на основание шатуна. Проворачивая двигатель и управляя краном и талями А и D, кривошип установить прямо у дверного проёма.
  13. Убрать тали А. Используя тали D, осторожно, чтобы не повредить шейку, освободить нижний конец шатуна от шейки подшипника и в тоже время направляя кривошип к стороне выхлопа двигателя.
  14. Используя кран машинного отделения, поднять с двигателя шатун.

Монтаж шатуна

Connecting Rod: Mounting

Connecting Rod: Mounting

  1. Оборудовать шатун такими же подъёмными приспособлениями как указывалось при демонтаже. Использовать чистое смазочное масло для вкладыша и шатунной шейки.
  2. Поднять осторожно в картер шатун, используя попеременно кран машинного отделения и тали, присоединённые к подъёмному кронштейну D.
  3. Прицепить цепь тали А к приспособлению на основании шатуна. Манипулируя краном и талями А и D, осторожно, чтобы не повредить шейку подшипника, опустить шатун прямо к шатунной шейке.
  4. Когда конец шатуна расположится на шатунной шейке, зацепить цепь тали С к приспособлению на основании шатуна. Развернуть кривошип (crankthrow) прямо к стороне выхлопа двигателя, управляя краном машинного отделения и талями А, С и D. Когда головка шатуна станет у дверного проёма, переставить тали D на приспособление головки шатуна. Убрать трос, подсоединённый к крану, от приспособления на головке шатуна.
  5. Управляя талями, повернуть кривошип на 90° до НМТ. Позаботьтесь о том, чтобы трос тали D не касался шейки подшипника крейцкопфа.
  6. Поставить подъёмное приспособление на верхний конец шатуна на стороне кулачкового вала, и убрать ведущий провод из дверного проёма. Установить тали в кронштейн В и зацепить эти тали на подъёмное приспособление со стороны кулачкового вала на головке шатуна. Убрать тали на скобе D.
  7. Смазать шейку и вкладыш крейцкопфного подшипника обильно чистым смазочным маслом. Управляя талями А, В и С, повернуть кривошип в ВМТ. Удалить с направляющих крейцкопфа четыре опоры. Ослабить тали А, В и С на подъёмных приспособлениях шатуна. Убрать с шатуна все тали.
  8. Повернуть крейцкопф вниз, чтобы было достаточно для доступа к гайкам поршневого штока. Открутить и удалить гайки штока поршня. Установить подъёмные цепи между верхом крейцкопфа и основанием поршневого штока. Удалить все тали и подъёмные приспособления.
  9. Повернуть кривошип в НМТ. Поставить шпильки на шатун и закрутить их шпильковёртом с моментом обжатия согласно Data.
  10. Поставить крышку подшипника крейцкопфа, см. «Сборка подшипника крейцкопфа». Поставить поршневой шток на крейцкопфе.
  11. Повернуть кривошип в ВМТ и поставить крышку подшипника пальца кривошипа, см. «Монтаж мотылёвого подшипника»
  12. Убрать тали с картера и поставить на место плиты платформы.

Connecting Rod and Crosshead Panel

Connecting Rod - Hydraulic Tools

Connecting Rod - Tools

Crosshead - Hydraulic Tools

Литература

Эксплуатация, обслуживание и ремонт двигателей MAN B&W-ME - Пипченко А.Н., Пономаренко В.В., Шевченко В.А. [2014]
MAN B&W K98ME - VOLUME II MAINTENANCE

MirMarine
MirMarine – образовательный морской сайт для моряков.
На нашем сайте вы найдете статьи по судостроению, судоремонту и истории мирового морского флота. Характеристики судовых двигателей, особенности устройства вспомогательных механизмов и систем.