Wärtsilä 50DF – Фундамент

Двигатели могут либо жестко монтироваться на колодках, либо иметь упругое крепление на резиновых элементах. Если предполагается применить упругое крепление, необходимо проинформировать компанию Wärtsilä о наличествующих величинах возбуждения, таких, как частота прохождения лопасти гребного винта. Динамические воздействия от двигателя указаны в главе Вибрации и шумы.

Расположение стальной конструкции

Масляный танк системы не должен заходить под генератор, если масляный танк размещается под фундаментом двигателя. Кроме того, масляный танк должен быть симметрично расположен под двигателем в поперечном направлении.

Фундамент и двойное дно должны быть как можно более жесткими во всех направлениях, чтобы они могли амортизировать динамические воздействия от двигателя и генератора.

Габариты и конструкция фундамента должны быть рассчитаны так, чтобы можно было избежать вредоносных деформаций.

Фундамент генератора должен составлять единое целое с фундаментом двигателя.

Монтаж двигателя

Двигатели могут иметь жесткое, либо упругое крепление. Генератор имеет жесткое крепление и соединяется с двигателем с помощью упругой муфты.

Жесткое крепление

Двигатели могут иметь жесткое крепление на фундамент на стальных, либо на резиновых колодках. Нижние крепежные болты представляют собой сквозные анкерные болты со стопорными гайками с нижней стороны и гидравлически затянутыми гайками с верхней стороны.

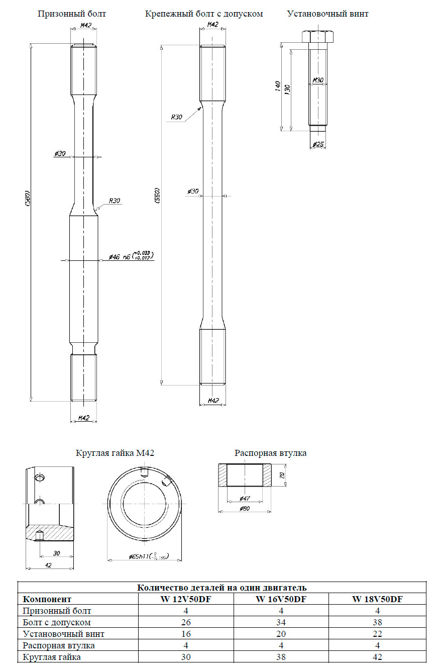
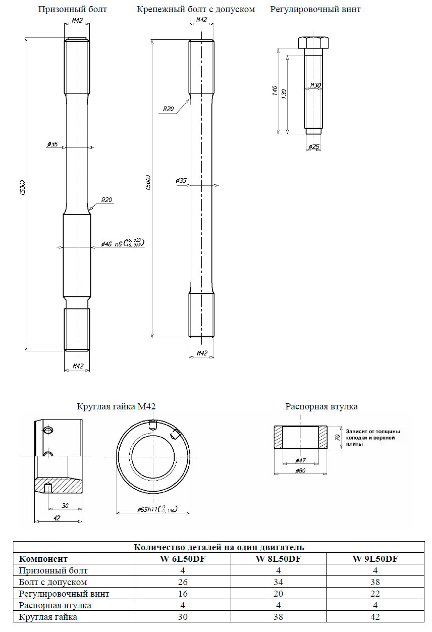
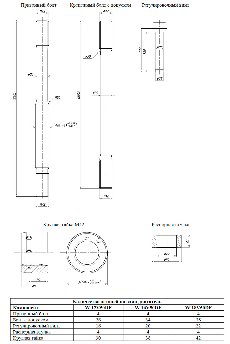
Болты номер два и три на обеих сторонах двигателя со стороны маховика должны представлять собой призонные болты Ø46 Н7/n6. Остальные крепежные болты являются (крепежными) болтами с допуском. Для призонных болтов необходимо использовать распорную втулку. Распорная втулка устанавливается между верхней плитой опорной поверхности и нижней гайкой, что позволяет обеспечить достаточную направляющую длину для призонного болта в верхней плите опорной поверхности. Направляющая длина в верхней плите опорной поверхности должна равняться по меньшей мере диаметру болта.

Конструкция различных крепежных болтов видна из чертежа фундамента. Рекомендуется использование болтов, изготовленных из высокопрочной стали, например, 42CrMo4 или подобной ей, однако конструктивное решение болтов допускает при необходимости использование стали качества St 52-3. Применение высокопрочного материала позволяет достигать большего растяжения болта, что обеспечивает большее удлинение (деформацию) болта. Большое удлинение болта служит мерой предохранения от ослабления гаек.

Чтобы избежать постепенного снижения величины затяжки из-за неровностей резьбы, необходимо, чтобы резьба была обработана с более жесткими допусками, нежели обычная резьба. Резьба болтов должна отвечать допуску 6G, а резьба гаек ― допуску 6Н.

Во избежание возникновения в болтах изгибного напряжения и для обеспечения надежного крепления, контактная поверхность гайки под верхней плитой опорной поверхности должна быть зенкована.

Максимальное допустимое растягивающее напряжение в болтах составляет 80% от предела текучести материала. Тем не менее допустимо превышать это значение при установке, для того, чтобы компенсировать посадку болтового соединения, но необходимо проверить, чтобы это не вызывало пластической деформации болтов. Для болтов, изготовленных из St52-3, величина затяжки должна составлять до 80% от предела текучести материала. Вместе с тем, для болтов, изготовленных из более высокопрочной стали, как то 42CrMo4 или ей подобной, достаточна величина затяжки примерно в 60-70 % от предела текучести материала.

Инструменты, входящие в стандартный набор инструментов для двигателя, используются для гидравлической затяжки нижних крепежных болтов. Площадь поршня этих инструментов составляет 72,7 см2, и давления гидравлической затяжки, указанные в нижеследующих разделах, могут быть приложены только при использовании данного инструмента.

Для всех двигателей необходимо установить боковые опоры. Одна пара опор должна быть расположена со свободной стороны двигателя, и одна пара (по меньшей мере) ― в середине двигателя. Боковые опоры следует приварить к верхней плите опорной поверхности прежде, чем будет произведена установка колодок.

Клинья в опорах должны устанавливаться без зазора, когда двигатель прогрелся до нормальной рабочей температуры. Клинья закрепляются на месте сварными соединениями. Необходимо обеспечить у клиньев опор достаточную контактную поверхность.

РЕЗИНОВЫЕ КОЛОДКИ

Установка двигателя на резиновых колодках возможна, при условии выполнения требований классификационных организаций.

При нормальных условиях максимальная температура несущей поверхности опоры двигателя составляет около 75°C, что следует принимать во внимание при выборе типа резины.

Рекомендуется применять резиновые колодки размером 600 x 180 мм для рядных двигателей 50DF компании Wärtsilä и 1000 х 180 мм для V-образных двигателей.

Полное давление на поверхность резины не должно превышать максимального значения, определенного для данного типа резины и установленного требованиями классификационной организации. Рекомендуется выбрать тип резины, утвержденный соответствующей классификационной организацией для полного давления на поверхность в 5 N/мм2. (Типовое установившееся значение - Рtot 3,5 N/мм2).

В качестве болтов следует применять эластичные болты с уменьшенным диаметром в хвостовой части, что будет обеспечивать достаточное удлинение, поскольку усилие болта ограничивается максимально допустимым давлением на поверхность резины.

Для конкретного диаметра болта допустимое растягивающее усилие на болт ограничивается либо пределом прочности материала болта (максимальное напряжение ― 80% от предела текучести), либо максимально допустимым давлением на поверхность резины. Имея в виду размеры болтов и размеры колодок, как указано на чертежах 1V69L0082a и 1V69L0083b, следует применить следующие значения давления для гидравлической затяжки:

  • Для рядных двигателей, если материал болтов St 52-3, при максимальном полном давлении на поверхность 2,9 N/мм2 Phyd = 200 бар
  • Для рядных двигателей, если материал болтов 42CrMo4, при максимальном полном давлении на поверхность 4,5 N/мм2 Phyd = 335 бар
  • Для V-образных двигателей, если материал болтов St 52-3, при максимальном полном давлении на поверхность 3,5 N/мм2 Phyd = 310 бар
  • Для V-образных двигателей, если материал болтов 42CrMo4, при максимальном полном давлении на поверхность 5,0 N/мм2 Phyd = 475 бар

Требуется застопорить верхние гайки, в случае, если применяется материал St 52-3 или когда полное давление на поверхность резиновых колодок ниже 4 MPа при рекомендованных размерах колодок. Нижние гайки должны быть застопорены в любом случае, независимо от растяжения болта.

СТАЛЬНЫЕ КОЛОДКИ

Верхние плиты ферм двигателя обычно имеют наклон наружу относительно центровой линии двигателя.

Наклон несущей поверхности должен составлять 1/100. Верхняя плита опорной поверхности должна быть сконструирована так, чтобы клиновидные стальные колодки можно было легко вставить на их места.

Клиновидные колодки также имеют наклон 1/100, соответствующий наклону опорной поверхности. Если верхняя плита фермы двигателя полностью горизонтальна, колодка должна быть приварена к каждой точке опоры. Колодки привариваются по периферии, а также через отверстия, просверленные для этого с равными интервалами, чтобы не допустить возможности их относительного сдвигания в поверхностном слое. Затем приваренные колодки обрабатываются торцевым фрезерованием до получения наклона 1/100. Поверхности приваренных колодок должны быть достаточно широки, чтобы полностью покрывать клиновидные колодки.

Размер клиновидных колодок должен составлять 200 x 360 мм. Колодки в любом случае должны покрывать два болта, чтобы предохранить их от вращения (за исключением колодки, расположенной ближе всех к маховику, у которой одно отверстие). Материалом колодок может быть чугун или сталь.

Несущая поверхность опорной поверхности верхней плиты должна быть механически обработана до получения по крайней мере 75%-ной поверхности контакта. Колодка должна устанавливаться так, чтобы расстояние между отверстиями для болтов и ребрами было одинаковым с обеих сторон.

Вырез в колодках для крепежных болтов с допуском должен быть примерно на 2 мм больше диаметра болта. Отверстия для призонных болтов следует просверлить и развернуть для получения нужного допуска после того, как проверена центровка муфты и колодки слегка вбиты на места.

В зависимости от материала, используемого для болтов, надлежит применить следующие значения давления для гидравлической затяжки, при условии, что минимальный диаметр составляет 35 мм:

  • St52-3, затяжка до 80 % от предела текучести, Phyd = 420 бар
  • 42CrMo4, затяжка до 70% от предела текучести, Phyd = 710 бар

Установка на опорную поверхность и закрепление, рядные двигатели с жестким креплением на стальных колодках

Установка на опорную поверхность и закрепление, V-образные двигатели с жестким креплением на стальных колодках

Установка на опорную поверхность и закрепление, рядные двигатели с жестким креплением на резиновых колодках

Установка на опорную поверхность и закрепление, V-образные двигатели с жестким креплением на резиновых колодках

Упругое крепление

Чтобы уменьшить вибрации и шумы, возникающие от установки, двигатели можно монтировать с упругим креплением на резиновых элементах.

Блок двигателя обладает такой жесткостью, что для него не требуется никакой промежуточной несущей рамы. Резиновые опоры крепятся к стойкам двигателя при помощи крепежной направляющей. Преимуществом вертикального монтажа является легкость центровки.

Типичным материалом для упругих элементов служит натуральный каучук, обладающий превосходными техническими характеристиками по вибрации, но, к сожалению, способный повреждаться под воздействием минерального масла. Резиновые опоры необходимо предохранять от попадания капель и брызг с помощью покрытий.

Компания Wärtsilä может произвести поставку инструмента для обработки верхней плиты под упругим или резиновым элементом.

Установка на опорную поверхность и закрепление, рядные двигатели с упругим креплением

Установка на опорную поверхность и закрепление, V-образные двигатели с упругим креплением

Применение обрабатывающего инструмента предполагает, что максимальное расстояние между крепежной направляющей и верхней плитой составляет 85 мм.

Крепежные скобы боковых и концевых амортизаторов привариваются к фундаменту.

Ввиду упругого крепления двигатель будет двигаться при прохождении через резонансные частоты вращения при пуске и остановке. Типовые амплитуды составляют +/- 1 мм у центра коленвала и +/- 5 мм в верхней части двигателя. Противодействие, создаваемое крутящим моментом, будет приводить к смещению двигателя до 1,5 мм у центра коленвала и на 10 мм у выхода ГТН. Помимо того, при установке и центровке двигателя придется принимать во внимание ползучесть и тепловое расширение резиновых опор.

Гибкие соединения труб

Если двигатель установлен на упругом креплении, все соединения должны быть гибкими, и на двигатель нельзя прикреплять ограждений или лестниц. В особенности соединение с ГТН должно быть оборудовано так, чтобы оно было способно амортизировать вышеуказанные смещения. При установке гибких соединений труб следует избегать лишних изгибов и растяжений. Внешняя труба должна быть с точностью центрована с фитингом или фланцем на двигателе.

Трубные зажимы для трубы, находящейся с наружной стороны гибкого соединения, должны быть очень жесткими и должны быть приварены к стальной конструкции фундамента для защиты от вибраций, которые могут повредить гибкое соединение.

Более подробную информацию см. в главе Конструктивное исполнение, очистка и установка трубопровода.

Литература

Двухтопливные двигатели WARTSILA 50DF руководство по проектированию [2010]

MirMarine
MirMarine – образовательный морской сайт для моряков.
На нашем сайте вы найдете статьи по судостроению, судоремонту и истории мирового морского флота. Характеристики судовых двигателей, особенности устройства вспомогательных механизмов и систем.