MAN B&W 50-108 ME-C: поршень со штоком и сальниковая камера. Ремонт, демонтаж, монтаж

Поршень состоит из двух главных частей: головки поршня и юбки поршня. Головка поршня крепится к верхнему концу поршневого штока, а юбка поршня к поршневой головке. Головка поршня обеспечена одним пазом по всему кругу или тремя небольшими пазами для крепления подъёмного инструмента. Головка поршня снабжается хромированными канавками для четырёх поршневых колец. Кольцо №1 является компрессионным CPR (Controlled-Pressure Relief ring). Кольца № 2, 3 и 4 имеют наклонные срезы. Кольцо № 3 имеет правосторонний срез (right-hand cut), а кольца 2 и 4 имеют левосторонний срез. На некоторых двигателях поршневые кольца обеспечены алюминиевым покрытием для улучшения стабильности хода и уменьшения периода обкатки. Обращаться с кольцами необходимо бережно, поскольку удар может вызвать трещину в покрытии и шелушение. В стационарных двигателях CPR кольца могут иметь покрытие РМ14 на внешней поверхности, поэтому к ним также следует относиться бережно.

Шток поршня имеет проходное отверстие для трубы охлаждающего масла, которая крепится к верху поршневого штока. Охлаждающее масло поступает через телескопическое трубное соединение на направляющий башмак или на крейцкопф и, пройдя через отверстие в основании поршневого штока, через трубу охлаждающего масла в поршневом штоке, попадает в головку поршня. Масло проходит дальше, через несколько отверстий в напорной части головки поршня, в пространство около трубы охлаждающего масла в поршневом штоке. Из отверстия в основании поршневого штока масло направляется через крейцкопф к разгрузочному лотку (discharge spout) и на перфорированную трубу (slotted pipe) внутри рамы двигателя (framebox), а также через управляющее устройство для контроля потока и температуры. Основание поршневого штока находится на срезе пальца крейцкопфа. Между штоком поршня и крейцкопфом вставлена прокладка, толщина которой предопределена размерениями двигателя. Шток поршня крепится к пальцу крейцкопфа болтами или шпильками с гайками. Гайки затягиваются гидравлическим инструментом.

Сальниковая коробка. Отверстие для поршневого штока между пространством продувочного воздуха и картером двигателя приспособлено для сальниковой коробки поршневого штока, которая предназначается для предотвращения наброса картерного смазочного масла в пространство продувочного воздуха. Сальниковая коробка препятствует также протечке наддувочного воздуха в картер. Корпус сальниковой коробки состоит из двух частей, соединённых болтами.

Скреперные/уплотнительные кольца. Корпус снабжается некоторым числом кольцевых канавок машинной обработки:

  • Самая верхняя канавка содержит скреперное кольцо со скошенными краями, которое служит для предотвращения попадания нагара из продувочных окон вниз к другим кольцам. Далее ниже скреперного кольца располагаются уплотнительные кольца.
  • Кольцевые канавки в средней части содержат уплотнительные кольца, а самые нижние кольцевые канавки содержат скреперные кольца, которые снимают смазочное масло с поршневого штока. Масло, которое снимается с поршневого штока, возвращается в картер через отверстия в корпусе сальниковой коробки.

Через отверстия в корпусе и трубу сальниковая коробка связана с контрольным раструбом на внешней стороне двигателя, что позволяет контролировать работу уплотнения/скрепинга. Зазоры на концах кольцевых сегментов обеспечивают надёжную работу даже при износе поршневого штока.

Ревизия поршня

Piston - Checking

Piston - Checking

Piston - Checking

Инспекция продувочных окон. Чтобы установить возможные протечки поршня или крышки цилиндра необходимо во время инспекции продувочных окон обеспечить циркуляцию охлаждающей воды и охлаждающего масла.

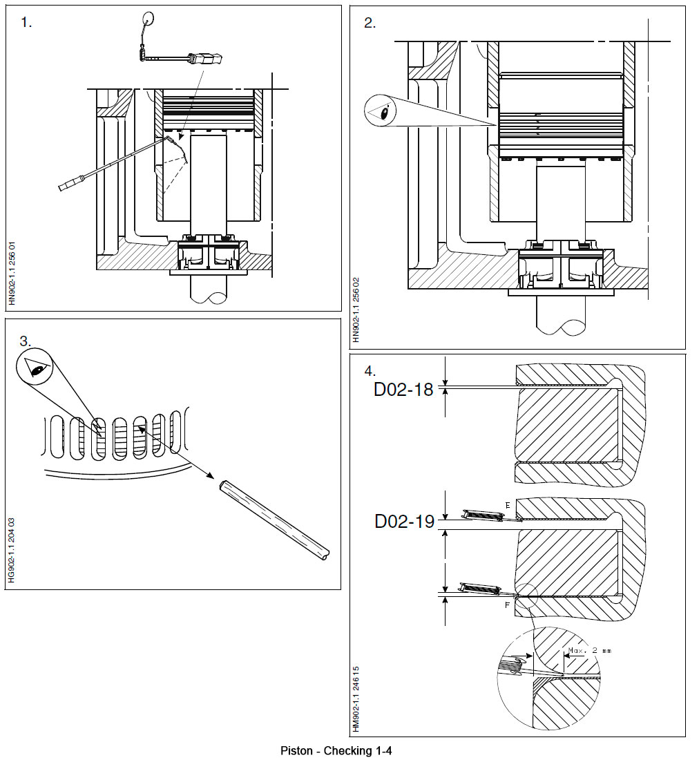
  1. Инспекция продувочного порта проводится от ресивера продувочного воздуха. Дополнительный осмотр колец возможен через крышку чистки (Cleaning cover) на стороне маневрирования (maneovring side). Провернуть двигатель минимум на ½ оборота и начать с нижнего подступившего к продувочным окнам комплекта.
    Осмотреть шток поршня и нижнюю часть стенки цилиндра. В то время, как поршень проходит вниз, проверить поршневую юбку, все поршневые кольца, посадочные кольца (ringlands) и верх поршня.
  2. Проверить кольца одновременно (one at time) и записать результаты. См. том 1, гл.707.
  3. Проверить подвижность и упругость поршневых колец путём нажатия деревянной рейкой.
  4. Кольцевые канавки: Измерить общий зазор между поршневыми кольцами и дорожками, который не должен превышать предписанных (in Data) значений. Измерения производятся сверху (Е) и снизу (F) между поршневыми кольцами и канавками. Общий зазор получают путём сложения Е и F.
  5. Самое верхнее поршневое кольцо: По возможности измеряют нутромером глубину дорожек при отсутствии давления. Кольца должны быть заменены, если радиальная глубина дорожки из-за износа меньше указанной в Data D 02-46.
  6. Проверка поршневых колец и головки поршня при переборке поршня:

  7. Удалить поршень из цилиндра и разместить его на суппорте.
  8. Замечание: При выемке поршня из цилиндра рекомендуется заменить все кольца.

  9. Перед демонтажем колец измерить стыковочный зазор всех поршневых колец.
  10. Снять с помощью экспандера поршневые кольца. Почистить и осмотреть кольца.
  11. Измерить ширину колец по радиусу. Записать результаты инспекции. См. том 1, гл.707.
  12. Прочистить кольцевые канавки и проверить их на следы подгорания и другие деформации. Измерить нутромером кольцевые канавки Data D02-10 и D02-11. Максимальная вертикальная высота в изношенной кольцевой канавке не должна превышать значения, указанного в Data. Канавка является изношенной, если там нет хромированного слоя.
  13. Почистить головку поршня и проверить выгорание с помощью трафарета. Максимально допустимая величина выгорания приводится в Data. Проверить выгорание по всей периферии головки поршня. Записать результаты для будущих сравнений.
  14. Поставить, используя экспандер для предотвращения непреднамеренных деформаций, новые поршневые кольца (поочерёдно правосторонние и левосторонние скосы и с маркировкой верха ТОР). Не растягивайте экспандер больше чем надо. Самое верхнее кольцо (CPR-ring) нельзя растягивать больше предела, промаркированного на экспандере.

Демонтаж поршня

Piston - Dismantling

Piston - Dismantling

Piston - Dismantling

  1. Повернуть крейцкопф вниз достаточно для доступа к сальниковой коробке поршневого штока и гайкам поршневого штока.
  2. Отсоединить сальниковую коробку путём удаления углубленных (innermost) винтов на фланце сальниковой коробки.
  3. Поставить проставки (spacer rings) на гайки поршневого штока и закрутить джеки на шпильки. Ослабить гайки.
  4. Замечание: Не удаляйте самые дальние (outermost) винты из фланца.

  5. Смонтировать две дистанционные проставки (distance pieces) на основании поршневого штока для защиты нижнего скреперного кольца и направляющей сальниковой коробки.
  6. Демонтировать крышку цилиндра. См. статью «Крышка цилиндра - ремонт, демонтаж, монтаж».
  7. Нанести метку на втулке и маслосъёмном (Cleaning ring) кольце. Удалить поршневое маслосъёмное кольцо. Тщательно удалить любые заусенцы на верхней части цилиндровой втулки. См. статью «Цилиндровая втулка и смазка цилиндра»
  8. Продвинуть поршень к верхней мёртвой точке TDC. Теперь верх поршня свободен от цилиндровой втулки. Если двигатель оборудован длинными дистанционными проставками (distance pieces) для сальниковой коробки, то основание поршневого штока может пройти между двумя шпильками цилиндровой крышки. При необходимости удалить одну или две шпильки цилиндровой крышки, используя шпильковёрт. Прочистить канавки на головке поршня для подъёмного приспособления и установить его.
  9. Установить две половинки суппорта вокруг одного из отверстий в платформе. Вытащить поршень из цилиндра и пропустить шток цилиндра и сальниковую коробку через отверстие в платформе. Приставить две половинки суппорта вокруг штока поршня и скрепить обе половинки болтами.
  10. Закрыть отверстие для штока и сальниковой коробки в основании цилиндрового блока. Произвести чистку, измерения и восстановление цилиндровой втулки. См. статью «Цилиндровая втулка и смазка цилиндра»
  11. Замечание: Убедиться в надёжной установке подъёмного приспособления, чтобы его лапы (claws) входили во внутрь канавок подъёмника на головке поршня.

  12. Провернуть крейцкопф вниз достаточно для установки защитного резинового покрытия на крышке крейцкопфного подшипника. Эта резиновая крышка должна оставаться на месте, чтобы защитить шейку подшипника крейцкопфа от повреждений при перестановках поршня.
  13. Снижение высоты подъёма

  14. Продвинуть поршень к верхней мёртвой точке. Удалить скобу из подъёмной оснастки и установить её с помощью крана машинного отделения и траверсы на суппортную оснастку. Удалить траверсу.
  15. Смонтировать оснастку для подъёма поршня. Поднять поршень на высоту достаточную, чтобы было свободное пространство для оснастки кантования (tilting tool). Смонтировать кантовочное приспособление вокруг поршневого штока и опустить поршень так, чтобы распорки (distance pieces) кантовочного приспособления вошли в контакт с поршнем. Прикрепить скобы к кантовочной оснастке.
  16. Удалить верхнюю подъёмную оснастку поршня и прикрепить троса кантовочной оснастки к траверзе. Поднять поршень на максимальную высоту крана. При повороте крана одновременно наклонять поршень. Одерживать шток поршня свободно от цилиндровой втулки и шпилек во время осуществления наклона поршня. Когда условия пространства позволят, выровнять поршень и подвести его к вырезу платформы для переборки. Когда поршень будет на удобной высоте относительно выреза в платформе, расположить суппорт поршня вокруг штока и захвата. Теперь опустить поршень в вырез платформы, ориентируясь на суппорт. После «приземления» поршня и проверки правильного размещения его на суппорте удалить оснастку кантовки.
  17. Замечание: На двигателях с чрезмерно низкой высотой подъёма необходимо применять кран машинного отделения с двойной укосиной (double-jib cran) вместо поперечки.

Переборка поршня

Piston - Overhaul

Piston - Overhaul

Piston - Overhaul

  1. Приспустить поршень вниз так, чтобы сальниковая коробка стала ниже платформы.
  2. Собрать две половинки поршневого суппорта вокруг поршневого штока. Снять поршневые кольца. См «Ревизия поршня»
  3. Демонтировать гайки гидравлики между штоком и головкой поршня.
  4. Закрутить поддерживающие болты до контакта с поршневой юбкой. Опустить юбку поршня на поршневой суппорт.
  5. Снять головку поршня. Снять юбку поршня. Тщательно проверить пространства охлаждения головки поршня относительно коксовых отложений. Любые найденные коксовые отложения должны быть удалены, см. шаг 12.
  6. Снять болты фланца трубы масла охлаждения. Поставить проушины и снять трубу охлаждающего масла. Проверить, почистить и затем поставить обратно трубу охлаждающего масла.
  7. Как альтернатива поршень может быть демонтирован следующим путём:

  8. С поршня, установленного в суппортной оснастке, снять сальниковую коробку, см. ниже «Ремонт сальниковой коробки поршневого штока».
  9. Поднять поршень обычным подъёмным инструментом. Опускать до тех пор, пока основание поршневого штока не приблизится к платформе. Поставить шток на деревянный блок.
  10. Опустить головку поршня к платформе и установить её на деревянный блок таким образом, чтобы была возможность снять подъёмную оснастку.
  11. Поставить проушины на стороне подъёмной оснастки, зацепить краном и снять подъёмную оснастку с головки поршня. Поставить подъёмные скобы на днище основы поршневого штока и зацепить их на кран.
  12. Замечание: Во время подъёма необходимо удерживать кран для вертикального положения головки поршня.

  13. Поднять основание поршневого штока над деревянным блоком, удерживая кран вертикально относительно основания поршневого штока.
  14. Поставить поршень вертикально, расположив головку поршня на деревянных планках. Демонтировать гайки гидравлики, поднять шток поршня и расположить в горизонтальном положении на деревянных планках.
  15. Удалить стопорную проволоку (locking wire) и болты в юбке и поставить две проушины в отверстия, предназначенные для демонтирующих болтов. Поднять юбку и поставить её на деревянные планки.
  16. Тщательно почистить и проверить все части поршня. Если будут найдены коксовые отложения в областях охлаждения головки поршня, то эти зоны необходимо промыть карбоновым ремувером или подобной ему очищающей жидкостью. Когда все отложения будут растворены, почистить и проверить вновь головку поршня, см. «Ревизия поршня».
  17. Заменить все уплотнительные кольца на поршне. Все новые уплотнительные кольца должны быть покрыты смазочным маслом перед сборкой поршня. Смазать молибденовым дисульфидом MoS2 все болты. Собрать поршень в порядке обратном разборке. Если головка поршня обновляется, то шпильки головки поршня должны затягиваться моментом согласно D02-04. Затянуть все гайки гидравлики давлением затяжки, записанным в Data.

  18. Поставить стопорную проволоку таким образом, чтобы она натягивалась, если один из болтов идёт на расслабление, см. статью «Основные инструменты».
  19. Заполнить поршень и поршневой шток смазочным маслом. Установить прибор тестирования давления около основания поршневого штока. Протестировать давление согласно величине, установленной в Data sheet. Проверить контактную поверхность поршня и уплотнительных колец на плотность (Tightness). Проверить нет ли трещин в головке поршня.
  20. Слить масло с поршня. Поставить поршень в суппортную оснастку и подсоединить сальниковую коробку поршневого штока. См. «Ремонт сальниковой коробки поршневого штока».

Монтаж поршня

Piston - Mounting

Piston - Mounting

  1. Проверить поршневые кольца и головку поршня согласно «Ревизия поршня».
  2. Поставить подъёмную оснастку на головке поршня.
  3. Обеспечить правильное расположение сальниковой коробки относительно направляющих цапф в распорках (distance pieces), смонтированных на основании поршневого штока.
  4. Смазать уплотнительные кольца (O-ring) маслом. Снять крышку сальниковой коробки поршневого штока, открывающую доступ к днищу цилиндрового блока. Почистить фланец сальниковой коробки. Снять защитное резиновое покрытие с крейцкопфа.
  5. Провернуть крейцкопф к положению 45 град, от верхней мертвой точки.
  6. Смазать поршневые кольца, шток поршня и цилиндровую втулку смазочным маслом. Смазать О-кольца сальниковой коробки маслом. Поставить направляющее кольцо для поршневых колец на цилиндровую втулку. Опускать поршень в цилиндровой втулке, направляя основание поршневого штока через вырезы во фланце сальниковой коробки до тех пор, пока поршневые кольца не войдут во внутрь втулки.
  7. Повернуть крейцкопф почти к мертвой верхней точке. При необходимости:
    • разместить двухдюймовую деревянную планку на поверхности крейцкопфа. Планка должна быть размерена так, чтобы она была выше шпилек основания поршня.
    • проворачивать крейцкопф вверх до тех пор, пока поршневой шток не ляжет на планку, т е. поворачивать крейцкопф до тех пор, пока лицевая поверхность не станет параллельно основанию поршневого штока. Опустить крейцкопф настолько, чтобы было достаточно для удаления планки.

    Поворачивать крейцкопф вверх до тех пор, пока поршневой шток не станет на крейцкопф. Когда монтируемый поршень будет на крейцкопфе, то необходимо убедиться в том, что основание поршневого штока не повредит резьбу шпилек. Убедиться, что направляющее кольцо в крейцкопфе стоит правильно по центру отверстия поршневого штока.

    Раскрутить регулируемые захваты подъёмной оснастки и вытолкнуть её свободно из канавок на поршне. Убрать оснастку и направляющее кольцо для поршневых колец.

  8. Повернуть вниз и поставить сальниковую коробку на её фланец. Проверить, чтобы отверстия в сальниковой коробке и её фланце были точно по центру. Удалить распорки (distance pieces) от основания поршневого штока.
  9. Поставить и затянуть гайки поршневого штока, используя гидравлические джеки.
  10. Затянуть снизу сальниковую коробку поршневого штока через внутренние отверстия во фланце сальниковой коробки.
  11. Поставить маслосъёмное кольцо согласно маркировке. Если PC-кольцо повреждено (разлом или трещина), то его необходимо заменить другим.
  12. Если шпильки крышки цилиндра удалялись, то поставить их обратно. Тщательно прочистить поверхности вокруг базы шпилек и проверить уплотнительные кольца на шпильках. Закрутить шпильковёртом шпильки крышки цилиндров. Закрутить шпильки до конца и, затем отпустить назад на пол-оборота.
  13. Поставить крышку цилиндра на втулку и проверить расстояние выступающей части шпильки из крышки цилиндра. При необходимости подрегулировать выступ (D01-05) путём прокручивания шпильки.
  14. Прикрутить цилиндровую крышку и подсоединить нужные трубы. Смазать шток поршня молибденовым дисульфидом и провернуть коленчатый вал пару оборотов.
  15. При первой возможности: запустить главный двигатель и поработать около 15 минут на оборотах, соответствующих самому малому ходу. После этого остановить двигатель и проверить поршневой шток и сальниковую коробку.

Сальниковая коробка поршневого штока. Проверка сальниковой коробки

Piston Rod Stuffing Box - Checking

  1. После того как сальниковая коробка штока поршня демонтирована, необходимо проверить следующие зазоры:
  2. Самое верхнее скреперное кольцо и уплотнительные кольца

    Зазор на концах колец. Общий зазор (скреперное кольцо). D02-29.

    Самые нижние скреперные кольца.

    Зазор на концах колец. Общий зазор. D02-30.

    Как общее руководство - рекомендуется в зависимости от интервалов переборки и на основании опыта эксплуатации - осуществлять замену уплотнительных колец, когда указанные D02-29, D02-30 величины сократились на половину.

  3. Проверить длину пружин для различных нагрузок. Отрегулировать нагрузки для достижения длин, указанных в Data. Если необходимы нагрузки вне пределов, заданных в Data, то пружины должны быть отбракованы.

Если в период между переборками есть необходимость проинспектировать сальниковую коробку поршневого штока, то выполняют следующее:

Piston Rod Stuffing Box - Dismantling

  1. Проворачивают крейцкопф в положение около 90град. от верхней мёртвой точки. Ставят резиновую проставку вокруг поршневого штока для защиты от повреждений крейцкопфного подшипника.
  2. Снимают дренажную масляную трубу и все внутренние и внешние болты за исключением двух болтов, находящихся диаметрально противоположно во фланце сальниковой коробки по продольной оси двигателя.
  3. Смонтировать рабочий стол вокруг поршневого штока так, чтобы можно было отдать два оставшихся болта во фланце сальниковой коробки через отверстия.
  4. Удалить два длинных демонтажных болта на рабочем столе. Поставить их в сальниковую коробку через отверстия рабочего стола. Удалить оставшиеся два болта сальниковой коробки.
  5. Повернуть поршень к BDC, удалив, таким образом, сальниковую коробку от днища корпуса цилиндра. Удалить два длинных демонтажных болта из сальниковой коробки и поставить их в рабочий стол.
  6. С помощью четырёх коротких болтов в рабочем столе отдать сальниковую коробку от фланца.

Ремонт сальниковой коробки поршневого штока

Piston Rod Stuffing Box - Overhaul

Piston Rod Stuffing Box - Overhaul

Обычно ремонт сальниковой коробки поршня выполняется известными методами при демонтаже поршней. Во время такого ремонта поршень располагается на суппорте над одним из вырезов в верхней платформе. Поэтому работы с сальниковой коробкой выполняются снизу платформы следующим образом:

  1. Поставить две проушины на фланце сальниковой коробки и зацепить два захвата. Приподнять немного шток поршня и закрепить вокруг штока рабочий стол на удобной для работы высоте. Поставить сальниковую коробку на рабочий стол и удалить захваты и проушины.
  2. Удалить уплотнительные О-кольца сальниковой коробки. Если О-кольца в норме и будут использоваться вновь, сдвинуть их вверх по штоку и закрепить их в этом положении, например тесьмой. Открутить гайки сборочных болтов сальниковой коробки.
  3. Вытащить шесть болтов, и отодвинуть одну половину сальниковой коробки. Поставить две проушины на половинку сальниковой коробки и снять её со стола.
  4. Используя щуп, измерить зазор по вертикали колец. См. «Сальниковая коробка поршневого штока. Проверка сальниковой коробки».
  5. Удалить другую половинку сальниковой коробки и сдвинуть вниз все уплотнительные кольца и скреперные кольца к рабочему столу.
  6. Измерить зазор между кольцевыми сегментами, чтобы определить необходимость замены. «Сальниковая коробка поршневого штока. Проверка сальниковой коробки». Демонтировать и сложить в стопку кольца в таком же самом порядке как они были смонтированы в коробке. Тщательно прочистить все кольцевые сегменты. Проверить и оценить качество всех поверхностей уплотнительных колец. Если их поверхности имеют царапины или следы, то заменить кольца.
  7. Проверить длину пружин, см. «Сальниковая коробка поршневого штока. Проверка сальниковой коробки».
  8. Проверить поверхность поршневого штока. При наличии небольших царапин по длине, прошлифовать тщательно поверхность штока поршня мелкозернистым карборундовым камнем. В случае крупных царапин может понадобиться машинная обработка в мастерских.
  9. Прочистить половинки корпуса сальниковой коробки.
  10. Смазать поршневой шток (в области, где будут располагаться в сальниковой коробке комплекты колец) молибденовым дисульфидом MoS2. Собрать все комплекты колец сальниковой коробки вокруг поршневого штока на рабочем столе следующим образом:
    • разместить самые нижние сегменты скреперного кольца на рабочем столе;
    • разместить пружину вокруг сегментов, и сцепить концы пружины вместе.

    Повторить эту процедуру для остальных скреперных колец. Сверху скреперных колец собрать два комплекта уплотнительных колец (каждый состоит из 4-звенного и 8-звенного кольца). Смонтировать 8-звенное уплотнительное кольцо так, чтобы два направляющих штифта были лицом вверх; поставить пружину вокруг сегментов и сцепить концы пружины вместе. Смонтировать 4-звенное кольцо над 8-звенным уплотнительным кольцом. Протолкнуть два кольца вместе так, чтобы направляющие штифты нижнего уплотнительного кольца совпали с (engage with) двумя отверстиями верхнего уплотнительного кольца. Наконец, собрать самый верхний комплект пружины, состоящий из 4-звенного скреперного кольца и 8-звенного уплотнительного кольца.

  11. Использовать половинку сальниковой коробки на рабочем столе для подгонки высоты всех собранных комплектов колец на поршневом штоке, пока комплекты колец находятся напротив соответствующих канавок корпуса сальниковой коробки. После этого протолкнуть половинку сальниковой коробки до контакта с поршневым штоком по кругу с комплектами колец.
  12. Проверить снова кольцевой зазор. После этого установить вторую половину сальниковой коробки на рабочем столе, проталкивая её на место вокруг колец. Затянуть крепёжные болты моментом, указанным в Data Sheet. Вмонтировать в канавки сальниковой коробки О-кольца.
  13. Поставить проушины и троса и немного поднять сальниковую коробку. Убрать рабочий стол и опускать коробку до тех пор, пока она не расположится напротив распорок (distance pieces) на основании штока поршня. Удалить троса и проушины.

Установка сальниковой коробки

Piston Rod Stuffing Box - Mounting

  1. После переборки соединить половинки сальниковой коробки четырьмя болтами. Ввернуть два длинных болта от рабочего стола в коробку. Ввернуть короткие болты так, чтобы сальниковая коробка достигла фланца.
  2. Поднимать поршень до тех пор, пока сальниковая коробка не станет на место в цилиндровой раме.
  3. Примечание: Убедитесь в том, что два направляющих шплинта на фланце входят в направляющие отверстия в днище цилиндровой рамы.

  4. Вкрутить два болта во фланец через отверстия рабочего стола.
  5. Отдать длинные болты от сальниковой коробки и ввернуть их в рабочий стол. Убрать рабочий стол от штока поршня.
  6. Поставить и затянуть все внутренние и внешние болты сальниковой коробки. См. Data.
  7. Убрать защитное резиновое покрытие с поршневого штока/крейцкопфа. Смазать поршневой шток молибденовым дисульфидом. После этого провернуть коленчатый вал на пару оборотов. Запустить двигатель и подержать его в работе около 15 минут на оборотах, соответствующих очень низкой или холостой скорости. После этого остановить двигатель и проверить шток поршня и сальниковую коробку.

Piston and Piston Rod Panel

Piston and Piston Rod - Tools

Piston and Piston Rod - Hydraulic Tools

Piston and Piston Rod - Tilting Tools

Piston and Piston Rod - Support Tools

Piston - Lifting Tools

Литература

Эксплуатация, обслуживание и ремонт двигателей MAN B&W-ME - Пипченко А.Н., Пономаренко В.В., Шевченко В.А. [2014]
MAN B&W K98ME - VOLUME II MAINTENANCE

MirMarine
MirMarine – образовательный морской сайт для моряков.
На нашем сайте вы найдете статьи по судостроению, судоремонту и истории мирового морского флота. Характеристики судовых двигателей, особенности устройства вспомогательных механизмов и систем.