Водоуказательные приборы вспомогательных котлов

Общие сведения

Каждый судовой котел с естественной циркуляцией воды можно надежно эксплуатировать только при определенном уровне находящейся в нем воды. Различают наинизший (НУВ) и наивысший (ВУВ) допустимые уровни воды. Рабочий уровень воды (РУР) располагается примерно посредине между ними. НУВ определяется из необходимости охлаждения водой наиболее высоко расположенных частей поверхности нагрева, омываемых горячими газами, т. е. предотвращения перегрева металла. ВУВ ограничивается необходимым объемом парового пространства, достаточным для отделения влаги от пара.

Уровень воды в котле контролируют при помощи водоуказательных приборов и пробных кранов (на огнетрубных котлах не менее двух). Каждый котел должен иметь не менее двух водоуказательных приборов. Водоуказательные приборы с плоскими стеклами устанавливают на всех котлах с давлением пара до 3,2 МПа.

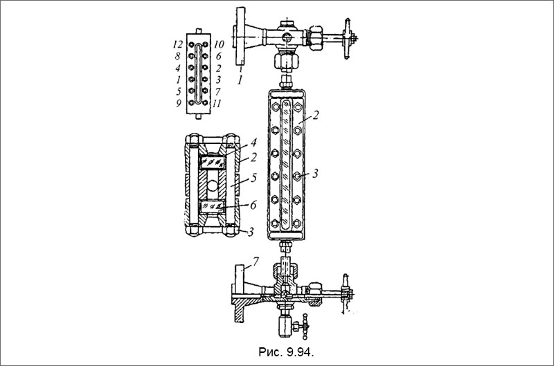
На рис. 9.94 показан водоуказательный прибор для двухстороннего наблюдения.

Водоуказательный прибор с плоским стеклом

Рис. 9.94. Водоуказательный прибор с плоским стеклом: 1 - фланец колонки; 2 - рамка стекла; 3 - крепежные гайки; 4 - плоское стекло; 5 - стягивающие болты; 6 - плоское стекло с призматическими канавками; 7 - фланец.

Каждый котел оборудуют двумя водоуказательными приборами, обеспечивающими требуемую надежность в эксплуатации. Водоуказательная колонка сообщена с водяным и паровым пространствами барабана специальными клапанами запорными и продувания, управляемыми дистанционно с помощью специальных тяг.

Два толстых плоских стекла 6 закрепляют рамками 2 при помощи шпилек 5 с гайками 3. Прокладки 4, устанавливаемые с обеих сторон, обеспечивают герметичность стекла. Внутренняя поверхность стекла 6 имеет параллельные призматические канавки (риски), что способствует четкой видимости уровня воды благодаря разному коэффициенту преломления луча. При этом вода кажется темной, а пар - серебристым.

Для равномерного обжатия прокладок рекомендуется поджимать гайки 3 в последовательности, указанной в левой верхней части рисунка. Фланцами 1 и 7 прибор присоединяется к котлу или подводящим трубам. Трубы для продувки водоуказательного прибора отводят под плиты котельного отделения.

При работе котла уровень воды в стекле прибора должен колебаться. Неподвижный уровень свидетельствует о засорении каналов. В этом случае стекло продувают, открывая сначала нижний спускной кран прибора, а затем поочередно краны, сообщающие прибор с паровым и водяным пространствами.

Обычно водоуказательные колонки устанавливают на пароводяном барабане, который расположен на значительной высоте и на расстоянии от пульта управления, это создает известные трудности для наблюдения за уровнем воды. По этой причине паровые котлы оборудуются сниженным указателем уровня воды в котле. Дистанционные водоуказатели являются дополнительными к водоуказателям, устанавливаемым по требованию классификационных обществ.

Приборы дистанционного указателя уровня воды в котле

Некоторые устройства дистанционных водоуказателей рассмотрим ниже. На рис. 9.95 приведен дистанционный водоуказатель «Игема», который позволяет контролировать уровень воды в высоко расположенном паровом барабане котла. В водоуказателе уровень воды представлен столбом жидкости красного цвета, подсвеченным сзади.

Дистанционный водоуказатель «Игема»

Рис. 9.95. Дистанционный водоуказатель «Игема»: 1 - конденсационный сосуд; 2 - коллектор котла.

Устройство представляет собой U-образную трубу, нижняя часть которой заполнена специальной индикаторной жидкостью красного цвета. Один конец трубы соединен с водяным пространством парового барабана котла, поэтому уровень воды в нем точно соответствует уровню воды в котле. Второй конец трубы подключен к паровому пространству котла через конденсационный сосуд, который постоянно заполнен водой. Индикаторная жидкость нерастворима в воде, ее плотность превышает плотность котельной воды.

Из условия равновесия следует, что уровень в сниженном водоуказателе будет изменяться в зависимости от уровня воды в колене U-образной трубы, соединенной с водяным пространством котла.

Достоинством водоуказателя «Игема» является то, что благодаря применению окрашенной жидкости можно моментально определить уровень воды (или его отсутствие), что не всегда легко определить при использовании только водоуказательных приборов.

Другим устройством дистанционного определения уровня воды в котле является водоуказатель «Ярвэй», который показан на рис. 9.96. Как и водоуказатель «Игема», он с помощью одной трубки соединен с конденсационным сосудом, а другая трубка соединена с водяным пространством парового барабана котла. Концы трубок подведены к разным сторонам диафрагмы, деформация которой (вследствие изменения уровня воды в котле) преобразуется во вращательное движение стрелки, показывающей значение уровня воды в паровом барабане, на вертикальной шкале.

Дистанционный водоуказатель «Ярвэй»

Рис. 9.96. Дистанционный водоуказатель «Ярвэй»: а - схема подключения; б - принципиальная схема: 1 - водоуказатель; 2 - коллектор котла; 3 - конденсационный сосуд; 4, 5 - линии постоянного и переменного гидростатического напора; 6 - соединительные трубы; 7 - указатель; 8 - постоянный магнит, перемещаемый диафрагмой; 9 - подшипник; 10 - стальная спираль; 11 - шкала; 12 - стрелка указателя; 13-противовес.

Одним из вариантов устройства дистанционного сниженного водоуказателя уровня воды в пароводяном барабане представлен на рис. 9.97.

Сниженный указатель уровня

Рис. 9.97. Сниженный указатель уровня.

Уровень воды в трубке 18 практически соответствует уровню воды в барабане котла (он будет ниже вследствие большей плотности воды в трубке 18, чем пароводяной смеси в барабане).

Уровень воды в трубке 5 постоянен вследствие конденсации пара, поступающего в конденсатор 4 через трубопровод и разобщительный клапан 1. Гидростатическое давление от разности уровней в трубках 18 и 5 через грязеуловители 6 передается в U-образную трубку 12 сниженного указателя, в одной из ветвей 10 уровень которого будет изменяться в соответствии с изменением его в барабане котла.

Для четкой видимости уровня в U-образную трубку 12 наливают тяжелую цветную жидкость, не смешивающуюся с водой.

После заливки тяжелой жидкости в отверстие 14 систему заполняют дистиллятом через пробку 7, удаляя воздух через пробку 2. Затем перекрывают клапаны на трубках 5 и 15 (на рис. не указаны), и открывают клапаны 1 и 17, после чего сообщают прибор с трубками 5 и 15 и подгоняют уровень в приборе к уровню воды в барабане котла путем спуска части тяжелой жидкости через пробку 11.

При продувках грязеуловителей 6 прибор должен быть отсоединен от них, так как иначе тяжелая жидкость будет выброшена из прибора. В качестве тяжелой жидкости применяют четыреххлористый углерод СС14 плотностью 1,594, подкрашенный краской, придающей ему красный цвет.

В трубах, ведущих к дистанционному сниженному водоуказателю уровня, обычно устанавливают запорные клапана с шаровым затвором.

На рис. 9.98 показаны различные положения такого клапана: а- клапан закрыт, б - клапан открыт. В случае разрыва трубки и/или поломки стекла шар прижимается к седлу разностью давлений и автоматически закрывает клапан - позиция в. Для того, чтобы шар не мешал продувке труб, его можно отжать в сторону острием запорного клапана - позиция г.

Шаровой клапан

Рис. 9.98. Шаровой клапан.

Место расположения водоуказателя не влияет на его работу. В целях автоматического поддержания постоянного уровня воды в котле вспомогательные паровые котлы оснащаются регуляторами уровня воды. Исправное действие их предотвращает упуск воды из котла и выход последнего из строя.

Устройства защиты и сигнализации по нижнему уровню воды в котле

Судовые паровые котлы оборудуют устройствами системы сигнализации и защиты по нижнему уровню воды, благодаря которой обеспечивается безопасная работа котла при появление неисправности или неверного показания уровня воды.

Водотрубные котлы оборудуются двумя независимыми системами защиты, цилиндрические - одной. При снижения уровня воды до заданного нижнего значения система защиты должна подавать звуковой и световой сигнал тревоги, а затем автоматически отключать подачу топлива к форсункам.

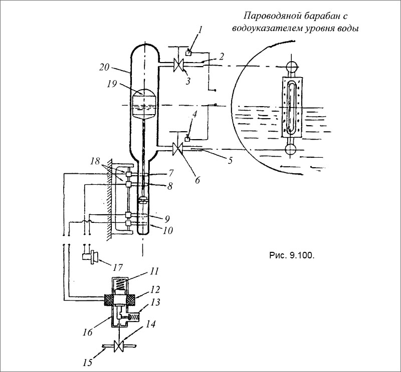
Датчик устройства сигнализации и защиты котла по нижнему уровню показан на рис. 9.99, который может быть установлен во внутреннем пространстве котла, либо в наружном устройстве, соединенным с паровым и водяным пространством барабана.

Принципиальная схема устройства защиты котла по нижнему уровню

Рис. 9.99. Принципиальная схема устройства защиты котла по нижнему уровню: 1 - свисток; 2 - трубопровод подвода пара к игольчатому клапану; 3 - игольчатый клапан; 4 - нижний уровень воды; 5 - поплавок; 6 - сервомотор клапана; 7 - быстрозапорный клапан подвода топлива к форсункам.

Датчик представляет собой поплавок, связанный с игольчатым клапаном и расположенным внутри барабана. При наличие уровня воды в котле в диапазоне РУР, игольчатый клапан под действием поплавка находится в закрытом положении. При снижении уровня воды до наинизшего опасного, поплавок опускается, открывая игольчатый клапан, обеспечивая подачу пара на свисток и к механизму отключения подачи топлива к форсункам.

Устройство системы сигнализации и защиты котла по нижнему уровню воды в барабане с наружным расположением устройства поплавка (рис. 9.100). Внешняя поплавковая камера соединена трубопроводами с паровым и водяным пространствами барабана. Поплавок внутри камеры находится в положении соответственно уровню воды в котле и водоуказательном приборе. На хвостовике поплавка находится магнит. При любом изменения уровня воды в барабане поплавок занимает соответствующее положение двигаясь вверх или вниз. Четыре микровыключателя с магнитными управляемыми контактами установлены снаружи поплавковой камеры. Они устроены так, что внутренний магнит соединен со своим внешним магнитом и управляют микровыключателями.

Устройство защиты котла по нижнему уровню с магнитными выключателями (герконами) и сигнализацией

Рис. 9.100. Устройство защиты котла по нижнему уровню с магнитными выключателями (герконами) и сигнализацией: 1 - микровыключатель положения клапана; 2 - трубопровод подвода пара из парового пространства барабана; 3 - разобщительный клапан; 4 - микровыключатель; 5 - трубопровод подвода воды из водяного пространства барабана; 6 - разобщительный клапан; 7 - контакт наивысшего уровня воды; 8 - контакт высокого уровня воды; 9 - контакт низкого уровня воды; 10- контакт наинизшего уровня воды; 11 - пружина возврата соленоида; 12- катушка соленоида; 13- ручное управление; 14- регулирующий клапан подачи топлива; 15- топливная магистраль; 16- корпус соленоида; 17 - аварийный звуковой сигнал; 18 - магнитные микровыключатели; 19 - поплавок; 20 - поплавковая камера.

Расположение микровыключателей таково, что каждому микровыключателю соответствует определенный уровень воды внутри пароводяного барабана. Один нижний контакт микровыключателя соответствует нижнему уровню воды в барабане. Поплавок следуя уровню воды в барабане опускается и своим магнитом соединяется с контактом низкого уровня, срабатывает сигнализация. При дальнейшем понижения уровня (если имеется место неисправности) магнит поплавка опускается и замыкает контакт наинизшего аварийного уровня. В этом варианте микровыключатель подает питание на соленоид, который закрывает топливный клапан, подача топлива к форсункам котла прекращается, что позволяет предотвратить аварию котла.

Два верхних микровыключателя устроены подобным образом для защиты по верхнему уровню воды, включая сигнализацию и затем выключая топливо и подачу воды в котел.

Для предотвращения ложных срабатываний при работе судна в штормовых условиях при сильной качке в электрической цепи микровыключателей установлено реле времени.

Микровыключатели также установлены на разобщительных клапанах поплавковой камеры, которые информируют о положении клапанов для того, чтобы быть уверенными в их полном открытии при работе установки.

MirMarine
MirMarine – образовательный морской сайт для моряков.
На нашем сайте вы найдете статьи по судостроению, судоремонту и истории мирового морского флота. Характеристики судовых двигателей, особенности устройства вспомогательных механизмов и систем.